Norma-SR

Packaging of bulk products in open-type bags – grains (wheat, corn, buckwheat, barley, millet), seeds, cereals, rapeseed, soybeans, sunflower and cotton seeds, sugar, salt, fertilizers, pellets, and other loose and granular products.

Simple, budget-friendly design, convenient for packaging relatively small batches of product, both in non-specialized premises and in workshop conditions.

Stores up to 8 preset dosage values in memory.

Continuous counting and indication of the number of bags per dose from the start of the dispenser operation (continuous counter).

Counting and display of the number of bags dispensed from a specified point in time for each dose (replacement counter).

Weight control according to the indicator readings.

Data storage in memory when the power supply is turned off.

Data transfer to a remote computer via RS485 interface, ModBus RTU protocol.

No compressor required.

Easy installation.

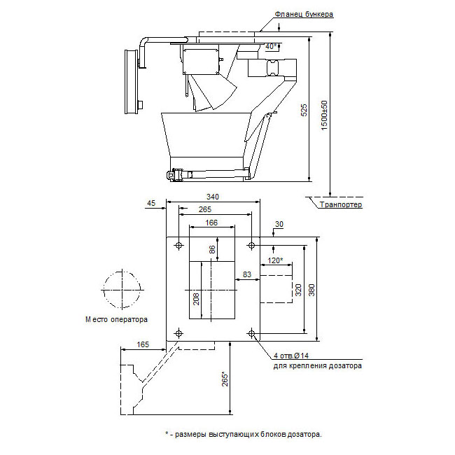
The dispenser is suspended under the storage hopper on four pins, plugged into a 220 V outlet, and ready to operate.

Features

Hopper’s capability,

  • portion to 25 kg      dose/hour
  • portion to 50 kg      dose/hour
 

250
200

Limits of dosing, kg 2-50
Inaccuracy of dosing according to DSTU OIML R61-1:2008

  • from 2 to 10 kg inclusively, no more
  • from 10 to 15 kg inclusively, no more
  • from 15 to 50 kg inclusively, no more
 

0,75%
37,5g
0,1%

Width of the sack, no less, m 0,43(0,25*)
Height with the hinged 50kg sack, m 1,55
Hopper’s mass, no more, kg 30
Power consumption from the monophase circuit 220 V, no more, W 10

* in case of changeable hopper neck usage.

Photo Gallery