Norma-TM

Purpose and scope of application

  • Ensuring portion weighing and total accounting of bulk products;
  • Determining the weight during continuous product flow from a conveyor, elevator, or during selection from a storage hopper with the possibility of adjusting the feed rate;
  • sampling of the required amount of product (packaging in soft containers or shipment in transport vehicles – cars, wagons, barges).

The design of the scales provides for:

  • portioned weighing of the product at a set capacity;
  • programmed weighing of the product dose;
  • indication of the total weight of the product that has passed through the scales since the start of operation;
  • indication of the total weight of the product that has passed through the scales since a specified point in time;
  • indication of direct and reverse weight counting in the “Program weighing” mode;
  • indication of the number of doses in the “Program weighing” mode;
  • indication of portion weight;
  • indication of current feed;
  • storage of quantitative dosing characteristics in memory in case of power failure;
  • output of 4…20 mA current signal;
  • data transfer to a remote computer via RS48 interface, ModBus RTU protocol.

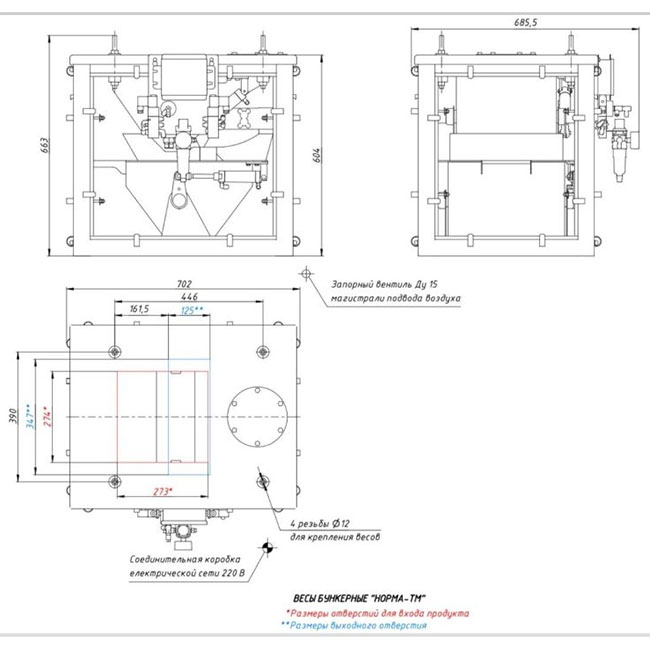
The scales can be supplied in a dust-proof version (in a frame with easily removable shields for access to the product and with windows for connecting aspiration).

The design of the scales allows for quick verification of readings using control weights.

The company carries out commissioning, warranty, and post-warranty service.

Specifications

Weighing capacity, m³/hour 12
Weighing accuracy, % 0.1
Working volume of weighing hopper, l 15
Compressed air consumption at 4 atm pressure, max, m³/hour 0.8
Power consumption from single-phase 220 V network, max, W 15
Weight of scales, max, kg 35