Norma SMK2

The dispenser is designed for filling soft containers (BIG BAGs).

It can be used to package bulk products, both food products (sugar, salt, cereals, grains, seeds, compound feed) and non-food products (fertilizers (nitrate, urea), pellets, and other loose and granular materials).

The loading and weighing process with the Norma-SMK2-T… dispenser is as follows:

  • The big bag is placed on a pallet (floor, roller conveyor, conveyor).
  • The loops are hooked onto the hooks.
  • The big bag liner is secured to the neck with a pneumatic clamp.
  • The liner is automatically inflated and the bottom of the container is formed.
  • After that, the hopper scales are turned on and the program-weighed portions of the product are poured into the Big Bag, forming the dose specified by the operator.
  • During product filling, the displaced air is removed from the bag through a special aspiration channel, with the possibility of further dust disposal.
  • After filling is complete, the liner is automatically released and the hooks are unclamped, releasing the loops.
  • The Big Bag is removed from under the dispenser. There are various options for removing filled containers – by conveyor, roller table, hoist, or forklift.

Storage of up to 8 preset dose values in memory.

Continuous recording and indication of the number of containers per dose from the start of dispenser operation (permanent counter).

Recording and indication of the number of containers dispensed from a specified point in time per dose (replacement counter).

Weight control according to the indicator readings.

Data storage in memory when the power supply is turned off.

Data transfer to a remote computer via RS485 interface, ModBus RTU protocol.

The company performs commissioning, warranty and post-warranty service.

Features

Norma-SMK2-TM Norma-SMK2-T Norma-SMK2-TN Norma-SMK2-TN1
Maximum capacity, m³/h 8 20 25 30
Loading time for 1 tonne of MKRA, sec 300 90 50 30
Minimum dose, kg 100 100 500 500
Maximum dose, kg 1500 1500 1500 1500
Deviation from the set dose, in ranges, no more than, % 0,2 0,2 0,5 0,5
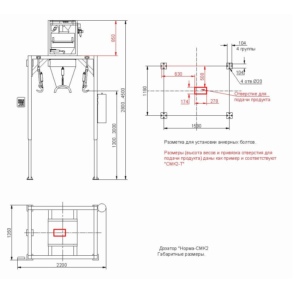
Dispenser height, determined by container height, mm 2900-4500
Compressed air pressure, MPa 0,6
Compressed air consumption, no more than, m³/h 4 4 10 10
Power consumption, no more than, W 15